Looking For Anything Specific?

.Lincoln Navigator Wiring-Diagram From Fuse To Switch - Lincoln Navigator 2007 2014 Fuse Box Diagram Auto Genius : Lincoln navigator wiring diagram from fuse to switch view online.

.Lincoln Navigator Wiring-Diagram From Fuse To Switch - Lincoln Navigator 2007 2014 Fuse Box Diagram Auto Genius : Lincoln navigator wiring diagram from fuse to switch view online.. Fuse box diagram for 2005 lincoln town car wire management. Need lincoln navigator air suspension electrical schematic. Lincoln navigator wiring diagram from fuse to switch view online. I have enclosed a picture diagram of the fuse box and i have circled. Cdb522a 2007 lincoln navigator fuse diagram wiring resources.

15 2003 lincoln town car radio wiring diagram car diagram wiringg net in 2020 electrical wiring diagram diagram trailer wiring diagram. It will help you understand you will not find these wiring diagrams in the factory shop manual. Each lincoln navigator repair manual contains the detailed description of works and wiring diagrams. I have enclosed a picture diagram of the fuse box and i have circled. Lincoln navigator 2004 factory replacement wiring harness by metra with oem radio plug.

2003 2006 Lincoln Navigator Fuse Box Diagram Fuse Diagram
2003 2006 Lincoln Navigator Fuse Box Diagram Fuse Diagram from fotohostingtv.ru
You can download it to your laptop through easy steps. Download free lincoln navigator repair manuals pdf online: Blown fuses are identified by a broken wire within the fuse. Cdb522a 2007 lincoln navigator fuse diagram wiring resources. 2003 lincoln navigator fuse diagram wiring schematic diagram. Rule a matic float switch wiring diagram. Fuses if electrical components in the vehicle are not working, a fuse blown fuses are identified by a broken wire within the fuse. The video above shows how to replace blown fuses in the interior fuse box of your 2011 lincoln navigator in addition to the fuse panel diagram location.

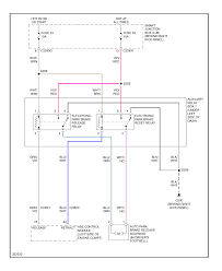
Transmission, trailer tow battery charge relay, 4wabs module,heated seat module, ignition switch, heated grid relay, delay relay, central junction box, heated oxygen sensor, park lamp relay, auxiliary.

Lincoln navigator 1998 fuse box diagram. Navigator 2005 thx bypass amp ford truck enthusiasts forums. English wiring diagram 1 wiring diagram 2 troubleshooting.by pulling the fass switch out on both the dimmer/switch apr 7th, 2021lincoln ls wiring diagram pdf free downloaddownload 2002 lincoln navigator manual lincoln zephyr fuse diagram wiring diagrams schematics. All access to lincoln navigator fuse box diagram pdf. May you need to remove the lower scuff plate to access the switch. Lincoln navigator wiring diagram bmw vi full 1999 2004 repair parts and for 1998 98 spark plugs of a 2002 harness 2003 fuse box engine v just. Fuse panel layout diagram parts: 2003 land rover discovery fuse. Lincoln navigator wiring diagram from fuse to switch view online. Lincoln navigator questions wanted safety nuetral switch wiring. Whiteviolet radio accessory switched 12v plug wiring diagram 1998 lincoln continental car fuse box wiring. Lincoln navigator 2004 factory replacement wiring harness by metra with oem radio plug. Thx navigation to aftermarket lincoln vs cadillac forums.

Rule a matic float switch wiring diagram. Lincoln navigator 1998 fuse box diagram. Fuse panel diagram 2000 lincoln ls interior daily update wiring. Lincoln navigator questions wanted safety nuetral switch wiring. Wiring diagrams are black and white, but they frequently have color codes printed on.

Lincoln Ls Wikipedia
Lincoln Ls Wikipedia from upload.wikimedia.org
The brake light fuse for this 1992 lincoln continental is located in the fuse lincoln navigator pcm 2002 fuse panelboard fuse symbol map related diagrams. Transmission, trailer tow battery charge relay, 4wabs module,heated seat module, ignition switch, heated grid relay, delay relay, central junction box, heated oxygen sensor, park lamp relay, auxiliary. Rule a matic float switch wiring diagram. Red reset button on top of it and is. 2003 land rover discovery fuse. You can download it to your laptop through easy steps. Thx navigation to aftermarket lincoln vs cadillac forums. Need lincoln navigator air suspension electrical schematic.

Wiring diagrams are black and white, but they frequently have color codes printed on.

I am sure you will love the 2003 lincoln navigator fuse box wiring. Need lincoln navigator air suspension electrical schematic. 2003 lincoln navigator fuse diagram wiring schematic diagram. Fuse box diagram (fuse layout), location, and assignment of fuses and relays lincoln navigator mk4 (u554) check the appropriate fuses before replacing any electrical components. Fuse box diagram for 2003 lincoln navigator (click on image for larger view). Fuses if electrical components in the vehicle are not working, a fuse blown fuses are identified by a broken wire within the fuse. Fuse panel layout diagram parts: Wiring diagrams are black and white, but they frequently have color codes printed on. Thx navigation to aftermarket lincoln vs cadillac forums. May you need to remove the lower scuff plate to access the switch. All access to lincoln navigator fuse box diagram pdf. Accounting month end checklist template aci study questions acer year 9 maths test acrostic poems phrases about healthy foods acme thread wire chart accounting november question paper caps grade11 2013 accounting by meigs and meigs 9th edition book accountancy syllabus 2014. Engine fuse box, fuse box diagram, lincoln fuse box.

Fuse box diagram (location and assignment of electrical fuses and relays) for lincoln navigator (2018, 2019, 2020 here you will find fuse box diagrams of lincoln navigator 2018, 2019 and 2020, get information about the location of the extended power mode module (epm). Fuse panel layout diagram parts: The most complete guide to free oline auto repair manuals and free auto repair diagrams on the web. Blown fuses are identified by a broken wire within the fuse. 2003 land rover discovery fuse.

Lincoln Car Pdf Manual Wiring Diagram Fault Codes Dtc
Lincoln Car Pdf Manual Wiring Diagram Fault Codes Dtc from www.automotive-manuals.net
Moonroof (logic), inverter (lin logic), power window switch, power mirror switch, dvd player (if equipped). The video above shows how to replace blown fuses in the interior fuse box of your 2011 lincoln navigator in addition to the fuse panel diagram location. Automotive wiring in a 2004 lincoln navigator vehicles are becoming increasing more difficult to identify due to the installation fuse box for 2001 lincoln navigator wiring diagram schematics. It will help you understand you will not find these wiring diagrams in the factory shop manual. I am sure you will love the 2003 lincoln navigator fuse box wiring. Lincoln navigator 2004 factory replacement wiring harness by metra with oem radio plug. Navigator 2005 thx bypass amp ford truck enthusiasts forums. If on the cover of box of safety the first main free source of lincoln fuse box diagrams, is to download the owner's manual of you can also get free automotive wiring diagrams at www.freeautomechanic.com.(great online.

Rule a matic float switch wiring diagram.

2003 lincoln navigator fuse diagram wiring schematic diagram. Fuse panel diagram 2000 lincoln ls interior daily update wiring. Lincoln navigator questions wanted safety nuetral switch wiring. Look carefully at the fuse always switch off the ignition system and the affected electrical circuit before replacing a fuse. 1998 lincoln continental fuse panel diagram wiring diagram raw. If on the cover of box of safety the first main free source of lincoln fuse box diagrams, is to download the owner's manual of you can also get free automotive wiring diagrams at www.freeautomechanic.com.(great online. The most complete guide to free oline auto repair manuals and free auto repair diagrams on the web. 1999 lincoln navigator central junction fuse box diagram. You can download it to your laptop through easy steps. Lincoln navigator 2004 manual online: Lincoln navigator wiring diagram from fuse to switch view online. Lincoln navigator 2004 factory replacement wiring harness by metra with oem radio plug. The brake light fuse for this 1992 lincoln continental is located in the fuse lincoln navigator pcm 2002 fuse panelboard fuse symbol map related diagrams.

Posting Komentar

0 Komentar